1806 Old Burnt Store Road $1,275,000
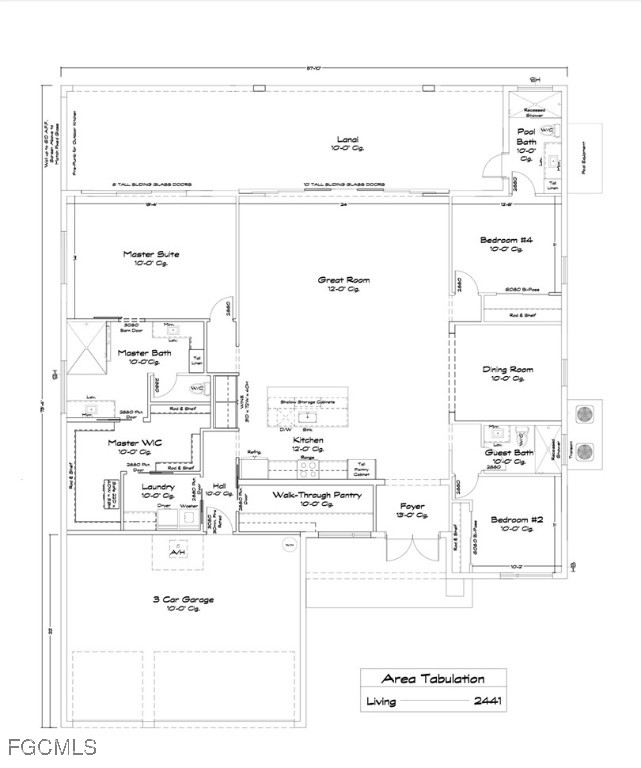
Step into this extraordinary 2021 built custom home and you’ll be amazed looking straight through a 20’ wall of glass to virtually unlimited water views which sets this location apart from every other home on the market. This elegant home is sure to please even the most discerning homeowner. 12’ tall ceilings and 10’ tall pocketing sliding glass doors floods the main living area with natural light. The gourmet kitchen is the heart of the home and includes a massive island, solid wood cabinetry with quartz countertops, upscale appliances including French door refrigerator, a double oven range with custom hood and the largest butler's panty you’ll find on any home this size. Three bedrooms including a second ensuite bedroom plus a den/office and three full baths offers plenty of room for family and friends. You'll feel like you are on vacation in the master suite with amazing water views through a large pocketing slider. The master bath offers a spa like experience and has two vanities on opposite sides of the room; one includes a huge linen cabinet. A large, tiled shower with bench highlights the room. The massive walk-in closet is conveniently connected to the oversized laundry room making laundry a breeze. The living area and master bedroom blends seamlessly with an over 600 square foot lanai complete with a pool bath. The picture window screen enclosure will not obstruct the endless views. The swimmer in the family will love the 39’ long heated pool which is great for swimming laps or simply floating around. This exquisitely built and decorated home could be purchased with the optional furnishings making the transition to a vacation rental or a seasonal residence effortless. Other features include a three-car garage with epoxy floor, tile flooring throughout, whole home reverse osmosis system and energy efficient spray foam insulation insures year-round comfort. You’ll also have one of the safest and most secure homes around. The 10’4’ elevation is well above the required flood elevation and the home has impact rated doors and windows throughout. The covered boat dock with 10K lb lift is thoughtfully offset on the lot so it does not obstruct the amazing views. With this attention to detail and the exquisite styling, nothing on the market will feel quite like this stunning tropical oasis. Come see for yourself. You will not be disappointed.
General Amenities
Interior Amenities
Exterior Amenities
Landscape Amenities
Community Amenities
Appliance Amenities
Accessibility Amenities
- Beds
- 3
- Baths
- 3.00
- Ft2
- 2,464
- Lot Acres
- 0.23
- Year Built
- 2021
- Cooling
- CentralAir,CeilingFans,Electric
- Roof
- Tile
Virtual Tour
1806 Old Burnt Store Road
Cape Coral, Florida 33993
United States
Cape Coral, Florida 33993
United States
Subdivision: CAPE CORAL
County: Lee
Sale Type: For Sale
Ref #: 2026000687
Last Updated: Wednesday, 07 January 2026 06:15
Listed by Florida Gulf Home Realty LLC [For Sale]
- Beds
- 3
- Baths
- 3.00
- Ft2
- 2,464
- Lot Acres
- 0.23
- Heat
- Central,Electric
- Cooling
- CentralAir,CeilingFans,Electric
- Roof
- Tile
- Year Built
- 2021
- Garage Size
- 3
- Frontage
- Yes
- Beds
- 3
- Baths
- 3.00
- Ft2
- 2,464
- Lot Acres
- 0.23
- Year Built
- 2021
- Cooling
- CentralAir,CeilingFans,Electric
- Roof
- Tile
Virtual Tour
1806 Old Burnt Store Road
Cape Coral, Florida 33993
United States
Cape Coral, Florida 33993
United States
Subdivision: CAPE CORAL
County: Lee
Sale Type: For Sale
Ref #: 2026000687
Last Updated: Wednesday, 07 January 2026 06:15
Listed by Florida Gulf Home Realty LLC [For Sale]
