225 Avacado Court $299,750
Welcome to 225 Avacado Court - Old Florida Living with a Fresh New Energy!
Nestled in the revitalized Russell Park community, this charming residence captures the essence of Old Florida living while embracing the growth and renewal happening throughout the neighborhood. This is an area where historic character meets new opportunity, making it a perfect choice for both homeowners and investors alike.
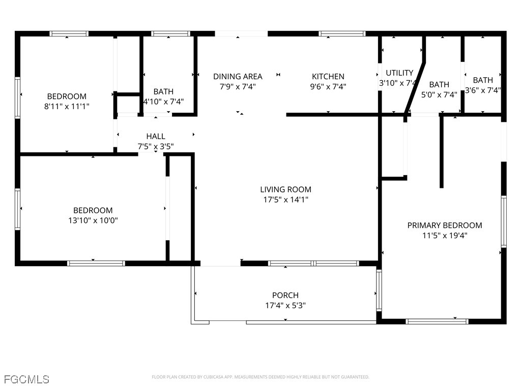
This adorable 3-bedroom, 2-bath home offers a versatile layout ideal for a variety of living arrangements. The main home features two bedrooms and one full bath, while the third bedroom includes a private exterior entrance, its own bathroom, and a kitchenette - perfect for an in-law suite, guest quarters, or an income-producing rental.
Relax on the inviting front porch and take in the tropical surroundings, or step inside to enjoy bright, open living spaces highlighted by French doors leading to a fully fenced backyard.
The property offers ample front parking for multiple vehicles and a large fenced yard with room to store your boat, trailer, or recreational toys. You’ll love being just a short walk to the Caloosahatchee River, where the community boat ramp and park with pavilion make it easy to enjoy a day of boating, kayaking, or fishing.
Centrally located minutes from Downtown Fort Myers and I-75, this home offers both convenience and future potential in one of Fort Myers’ most exciting and reenergized riverfront neighborhoods.
225 Avacado Court isn’t just a home - it’s a lifestyle and an investment in a growing community.
Interior Amenities
Exterior Amenities
Landscape Amenities
Community Amenities
Appliance Amenities
- Beds
- 3
- Baths
- 2.00
- Ft2
- 1,164
- Lot Acres
- 0.19
- Year Built
- 1963
- Cooling
- CentralAir,Electric
- Roof
- Shingle
Virtual Tour
225 Avacado Court
Fort Myers, Florida 33905
United States
Fort Myers, Florida 33905
United States
Subdivision: RUSSELL PARK
County: Lee
Sale Type: For Sale
Ref #: 2025012890
Listed by RE/MAX Realty Group [For Sale]
- Beds
- 3
- Baths
- 2.00
- Ft2
- 1,164
- Lot Acres
- 0.19
- Heat
- Central,Electric
- Cooling
- CentralAir,Electric
- Roof
- Shingle
- Year Built
- 1963
- Frontage
- Yes
- Beds
- 3
- Baths
- 2.00
- Ft2
- 1,164
- Lot Acres
- 0.19
- Year Built
- 1963
- Cooling
- CentralAir,Electric
- Roof
- Shingle
Virtual Tour
225 Avacado Court
Fort Myers, Florida 33905
United States
Fort Myers, Florida 33905
United States
Subdivision: RUSSELL PARK
County: Lee
Sale Type: For Sale
Ref #: 2025012890
Listed by RE/MAX Realty Group [For Sale]
